Sbarre Superiori - 3 piano n.a semi rustico personalizzabile
Codice riferimento annuncio: 1707
| Caratteristiche |
| |
|
Tipologia:
| APPARTAMENTO QUADRILOCALE - Vendita residenziale
|
| Città /Zona: |
Reggio di Calabria - Sud
|
| Indirizzo: |
Sbarre Superiori
|
|
Prezzo/Mq: |
€ 60.000 - Mq 145
|
|
Piano:
|
3
|
|
Ascensore:
|
No
|
|
Cucina o cucinotto:
|
Cucina abitabile
|
|
Soggiorno o Sala:
|
Salone
|
|
Numero Camere:
|
3
|
|
Condizionamento:
|
No
|
|
Interni:
|
Da Arredare
|
|
Finiture:
|
Da ristrutturare
|
| Descrizione |
|
Via Sbarre Superiori - All’interno di un piccolo stabile di sole 5 unità abitative, proponiamo in vendita esclusiva, appartamento semi rustico fortemente panoramico oltre che ampio;
Contesto silenzioso e ben abitato, ideale per chi cerca tranquillità senza rinunciare alla comodità dei servizi.
Punti di forza:
•Un solo appartamento per piano, perfetta condizione per una maggiore vivibilità in condominio;.
•Ottima esposizione panoramica, che garantiscono luce naturale per tutto il giorno;
•Facciata ripristinata nel 2017;
•Pavimenti in marmo in dotazione compresi nel prezzo, solo da posare;
•SI DISPONE DI ULTERIORI 2 APPARTAMENTI NELLO STESSO STABILE, PER UN EVENTUALE ACQUISTO CHE PERMETTE VICINANZA A GENITORI ANZIANI O ALTRI AFFETTI;
•Possibilità di realizzare ascensore.
L'appartamento, si presta sia ad una soluzione di investimento per una rendita mensile, che ad un uso abitativo funzionale per la sua posizione ben servita.
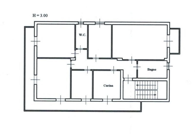
L' immobile si compone di:
•Ingresso su accogliente disimpegno;
•Cucina abitabile ben illuminata;
•Salone ampio e luminoso, versatile anche come zona hobby;
•3 camere da letto ben distribuite;
•2 bagni;
•Balconi panoramici con affaccio aperto e visuale panoramica.
Dotazioni e finiture:
•Infissi in legno;
•Pavimenti in marmo (posa in opera non eseguita a carico dell'acquirente);
•Pred.ze per impianto di riscaldamento termoautonomo;
•Impianto elettrico già presente;
•Autoclave condominiale.
Classe Energetica G 329.28 kWh/m a
Clicca "MI PIACE" sulle nostre pagine social : INSTAGRAM, TIK TOK e FACEBOOK per rimanere aggiornato sulle nostre proposte.
PUSTORINO IMMOBILIARE
Via Del Gelsomino, 35
(Fronte P. di Giustizia)
Cell. 392.36.53.700
Tel. 0965.616.616
Le informazioni contenute nell'annuncio non costituiscono elemento contrattuale e non sono vincolanti tra le parti. Gli immobili potrebbero subire modifiche successivamente alla pubblicazione dell'annuncio per opera del proprietario. Ogni effetto vincolante tra l'agenzia e il soggetto interessato sorgerà con la sottoscrizione della proposta di locazione o vendita. A tutela della privacy l'indirizzo indicato potrebbe non corrispondere alla reale ubicazione dell'immobile in oggetto, ma trovarsi nelle vicinanze e godere sostanzialmente degli stessi servizi.
|
Chiedi informazioni su questo annuncio
- Farmacie
- Medici
- Dentisti
- Ospedali
- Scuole
- Palestre
- Bar
- Ristoranti
- Banche
Pustorino Immobiliare
Via Del Gelsomino , 35 ( Zona Cedir - di fronte Palazzo di Giustizia) - 89128 Reggio Calabria
Email. pustorinoimmobiliare@hotmail.it
Tel. 0965.616.616
Cel. 392.36.53.700
Classe Energetica Immobile

I.P.E. 329.28 kWhm a